Pläne - Doppelhaus in Traumlage
×
Homepage
Das Haus
Pläne
Umgebung
Kontakt
Impressum / Datenschutz
Doppelhaus in Traumlage
Menü
×
Homepage
Das Haus
Pläne
Umgebung
Kontakt
Impressum / Datenschutz
Direkt zum Seiteninhalt
Pläne
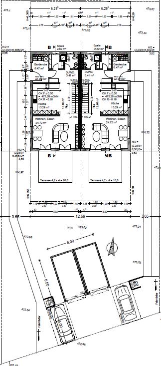
Grundriss des Erdgeschosses inkl. Terrasse
Grundriss des Obergeschosses
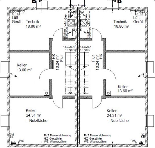
Grundriss des Kellers
Überblick Grundstück
Zurück zum Seiteninhalt
Um diese Website nutzen zu können, aktivieren Sie bitte JavaScript.